0
Réf : 1493
Sous-compromis
Exclusif

Sous-Offre -Maison provençale avec piscine – Secteur Tour de Mare à Fréjus

Fréjus (83600)
665 000 €

A propos de ce bien

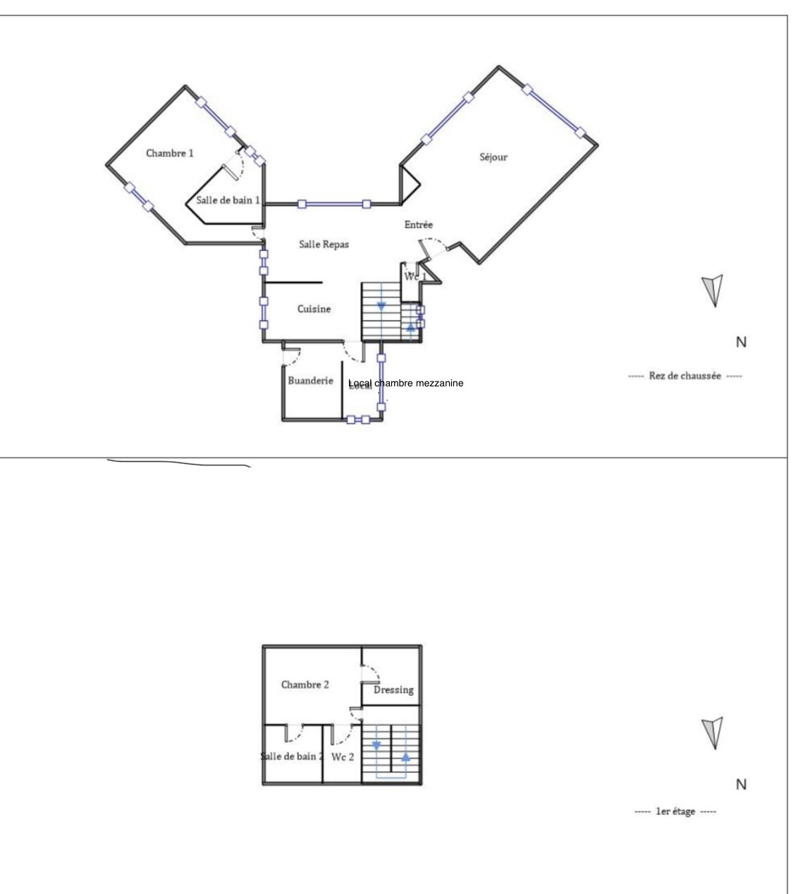
Maison provençale avec piscine – Secteur Tour de Mare à Fréjus

Située dans un domaine résidentiel fermé au sein de l'un des quartiers les plus convoités de Fréjus, cette magnifique demeure de style provençal s'étend sur une parcelle aménagée de 905 m² agrémentée d'une piscine. Le secteur de la Tour de Mare combine idéalement proximité des services et tranquillité, avec magasins, établissements scolaires et liaisons de transport à portée immédiate.

Cette habitation édifiée en 1998, propose :

Aménagement du rez-de-jardin :

  • Hall d'accueil ouvrant sur un vaste espace de réception baigné de lumière
  • Cuisine ouverte aménagée communiquant avec une terrasse abritée
  • Suite principale équipée de rangements intégrés avec sa salle d'eau
  • Seconde chambre dotée d'aménagements de rangement et mezzanine
  • Toilettes invités indépendants
  • Espace de service avec zone lessiverie et stockage

Configuration de l'étage supérieur :

  • Dégagement distribuant une chambre avec un large espace dressing
  • Salle d'eau avec baignoire
  • WC indépendants

Les espaces extérieurs comprennent un jardin entièrement clôturé et planté d'arbres matures, une terrasse orientée sud surplombant l'espace piscine, un spacieux abri de jardin en bois pour le rangement, carrelé et électrifié, et des emplacements de stationnement pour plusieurs véhicules avec borne de recharge

Avantages de la localisation :

  • Secteur prisé de la Tour de Mare, reconnu pour sa quiétude et sa sûreté
  • Connexion aisée vers l'autoroute A8 et les zones côtières
  • Voisinage à proximité établissements éducatifs, espaces verts et chemins pédestres
  • Arrêt de bus devant le domaine
  • Cadre résidentiel arboré et soigné
  • Faibles charges ASL

Une opportunité exceptionnelle dans ce secteur, combinant l'authenticité provençale, les prestations contemporaines et une situation géographique privilégiée.

Taxe foncière: 2605€ / an

Chauffage au sol et climatisation

Charges ASL: 40 €/mois

Descriptif du bien

TRAD_PAMPERO_Caracteristique Valeurs
Code postal 83600
Surface habitable (m²) 143 m²
surface terrain 905 m²
Surface loi Carrez (m²) 143 m²
Nombre de chambre(s) 3
Nombre de pièces 5
Nombre de niveaux 1
Vue espaces verts
TRAD_PAMPERO_Caracteristique Valeurs
Nb de salle de bains 1
Nb de salle d'eau 2
Cuisine Américaine
Type de cuisine Equipée
Mode de chauffage Pompe à chaleur, Gaz
Type de chauffage TRAD_TYPE_CHAUFF_AIR_EAU, Au sol
Format de chauffage Individuel, Individuel
Interphone OUI
Terrasse OUI
Nombre de parking 3
Exposition Sud
Année de construction 1998
Terrain arboré OUI
TRAD_PAMPERO_Caracteristique Valeurs
Prix de vente 665 000 €
Les honoraires d'agence seront intégralement à la charge du vendeur  
Charges 40 €
Taxe foncière annuelle 2 605 €
DPE GES
Ce bien vous intéresse ?
Fieldset par défaut
Fieldset par défaut
Validation

* Champs obligatoires

Contacter l'agence
Validation
Les informations recueillies sur ce formulaire sont enregistrées dans un fichier informatisé par La Boite Immo agissant comme Sous-traitant du traitement pour la gestion de la clientèle/prospects de l'Agence / du Réseau qui reste Responsable du Traitement de vos Données personnelles. La base légale du traitement repose sur l'intérêt légitime de l'Agence / du Réseau. Elles sont conservées jusqu'à demande de suppression et sont destinées à l'Agence / au Réseau. Conformément à la loi « informatique et libertés », vous disposez des droits d’accès, de rectification, d’effacement, d’opposition, de limitation et de portabilité de vos données. Vous pouvez retirer votre consentement à tout moment en contactant directement l’Agence / Le Réseau. Consultez le site https://cnil.fr/fr pour plus d’informations sur vos droits. Si vous estimez, après avoir contacté l'Agence / le Réseau, que vos droits « Informatique et Libertés » ne sont pas respectés, vous pouvez adresser une réclamation à la CNIL. Nous vous informons de l’existence de la liste d'opposition au démarchage téléphonique « Bloctel », sur laquelle vous pouvez vous inscrire ici : https://www.bloctel.gouv.fr Dans le cadre de la protection des Données personnelles, nous vous invitons à ne pas inscrire de Données sensibles dans le champ de saisie libre.
Ce site est protégé par reCAPTCHA, les Politiques de Confidentialité et les Conditions d'Utilisation de Google s'appliquent.
Ces biens peuvent vous intéresser